















Modern Luxury Awaits at Makalei Estates/ Under construction
Unrivaled Customization Meets Island Elegance
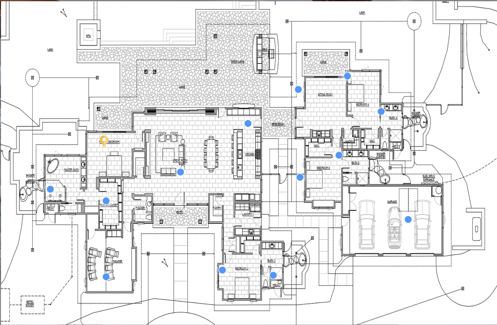
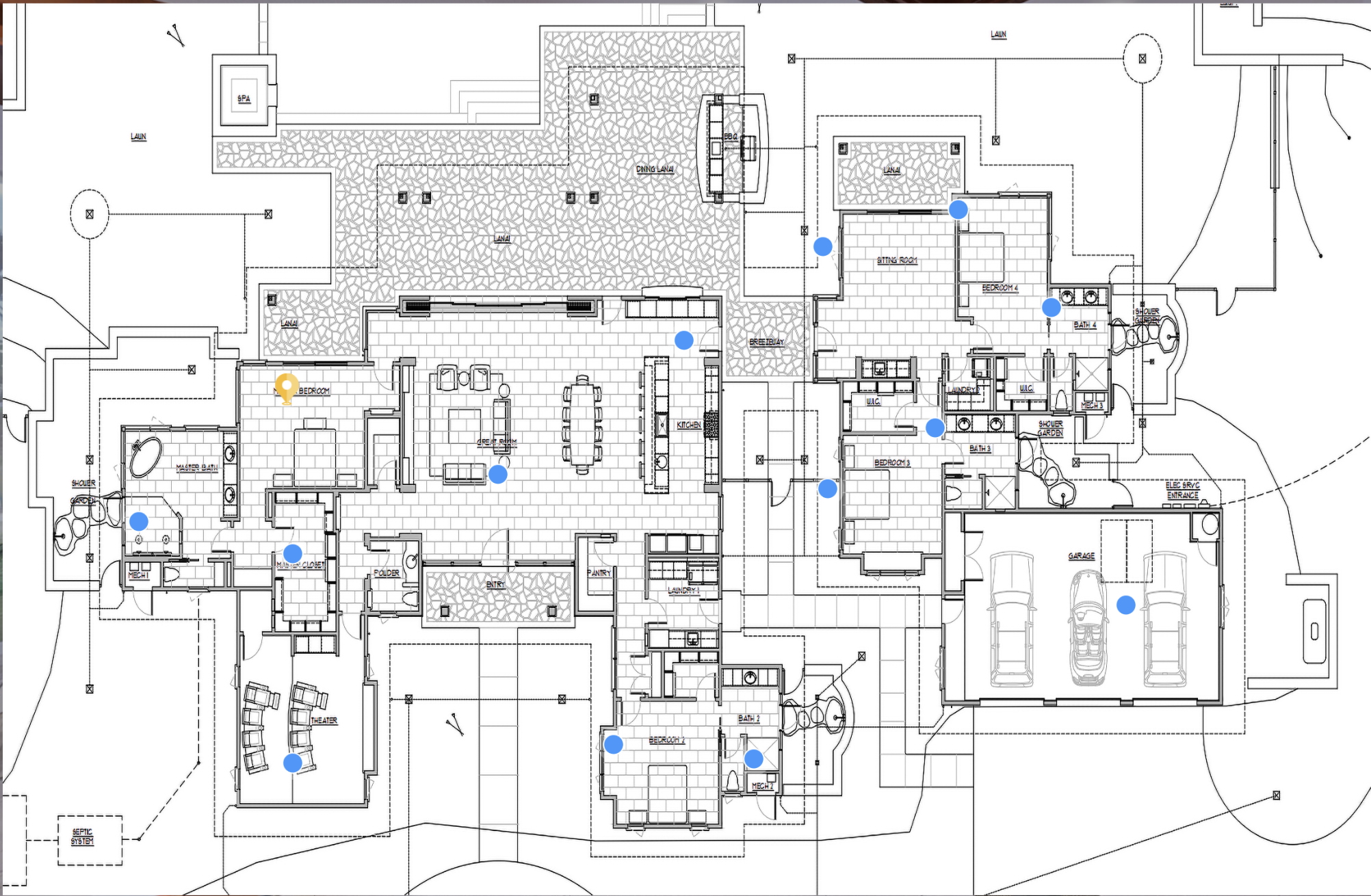
Seize the rare opportunity to own a masterfully designed contemporary estate in the prestigious Phase II of Makalei Estates. Currently under construction, this 5,800 sq. ft. sanctuary offers a sophisticated floor plan blending architectural boldness with the beauty of the Kona Coast. By securing this residence now, the buyer is invited to collaborate on the selection of final finishes, ensuring the home is a bespoke reflection of their personal style.
Sophisticated Living Spaces:
Grand Interior: Boasting 4 expansive bedrooms and 4.5 spa-inspired baths, the home is divided into a magnificent Main House and a private Guest Wing.
Entertainment Hub: Transition from a day in the sun to an evening in your professional-grade Theater Room, designed for ultimate cinematic immersion.
Culinary Excellence: A chef's kitchen featuring a massive island and high-end cabinetry flows seamlessly into the Great Room.
The Ultimate Outdoor Oasis:
Infinity Living: Step outside to a world-class infinity-edge pool and spa, meticulously positioned to offer unobstructed, panoramic ocean views.
Expansive Lanais: Enjoy 2,500 sq. ft. of covered lanai space, including dedicated dining and lounging zones perfect for Kona's famous sunsets.
Masterful Landscaping: The property is anchored by extensive, hand-crafted lava rock retaining walls and an expansive, level yard that maximizes the 3.3-acre lot.
Premium Infrastructure
Spacious Storage: An oversized 3-car garage provides ample room for vehicles and island toys.
Artful Engineering: From the gated entry to the detailed masonry, every inch of this Lot 20 estate reflects the highest standards of modern engineering and design.
Don't just buy a home--design your lifestyle. Contact us today to review the permit plans and begin selecting the finishes for your North Kona dream estate.
Bringing together a team with the passion, dedication, and resources to help our clients reach their buying and selling goals. With you every step of the way.
Contact Us