



























Unique investment opportunity in the heart of Hilo featuring two separate homes on one lot, offering flexibility for multi-generational living or rental income. Surrounded by a mix of residential and commercial properties, there may be potential to pursue commercial zoning (buyers to verify with the County)
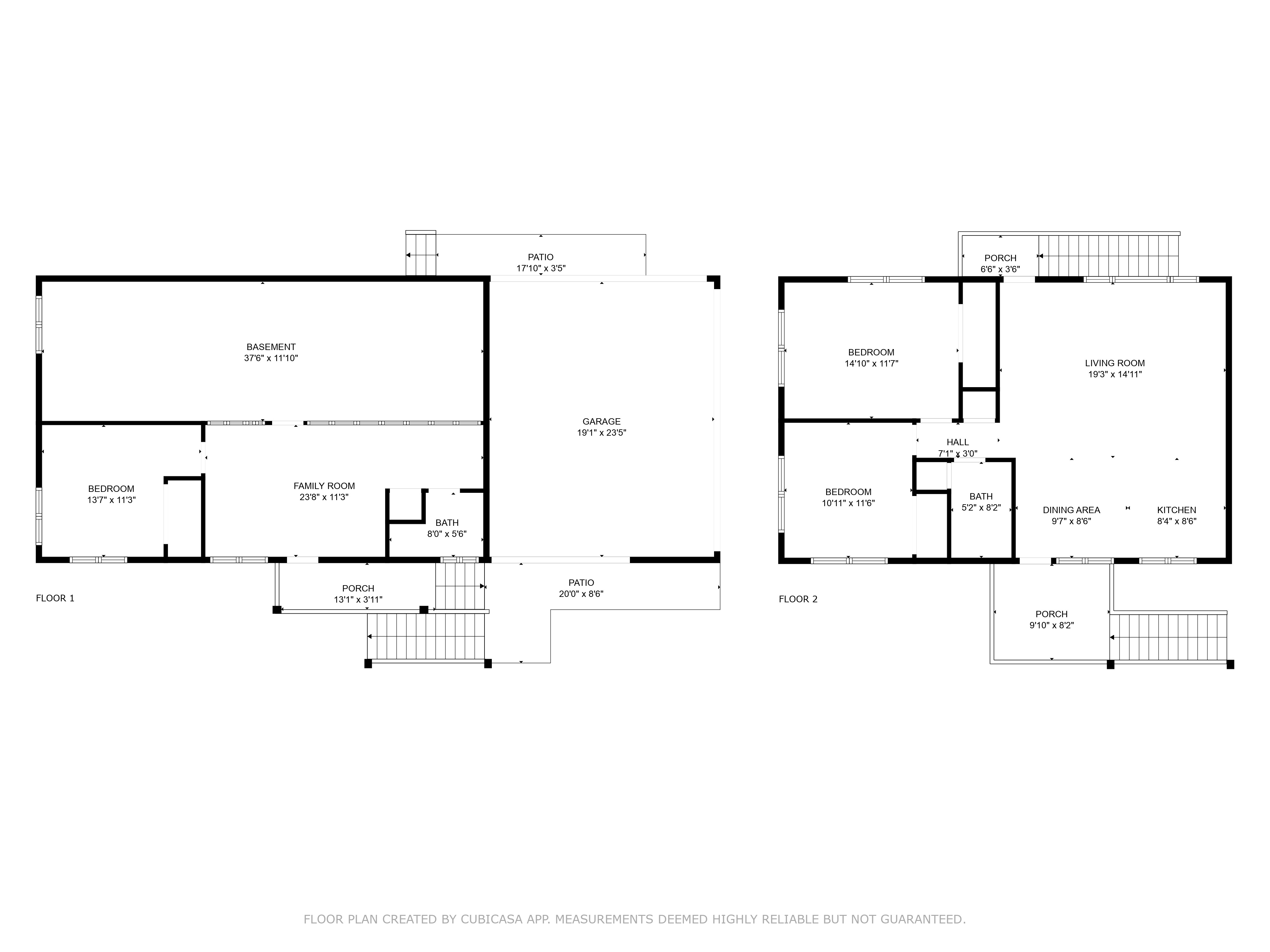
The first home, a charming multi-level residence (white home), was originally built in 1932 and refreshed in 2020, featuring two bedrooms and two bathrooms (one 3/4 bath and one 1/4 bath).
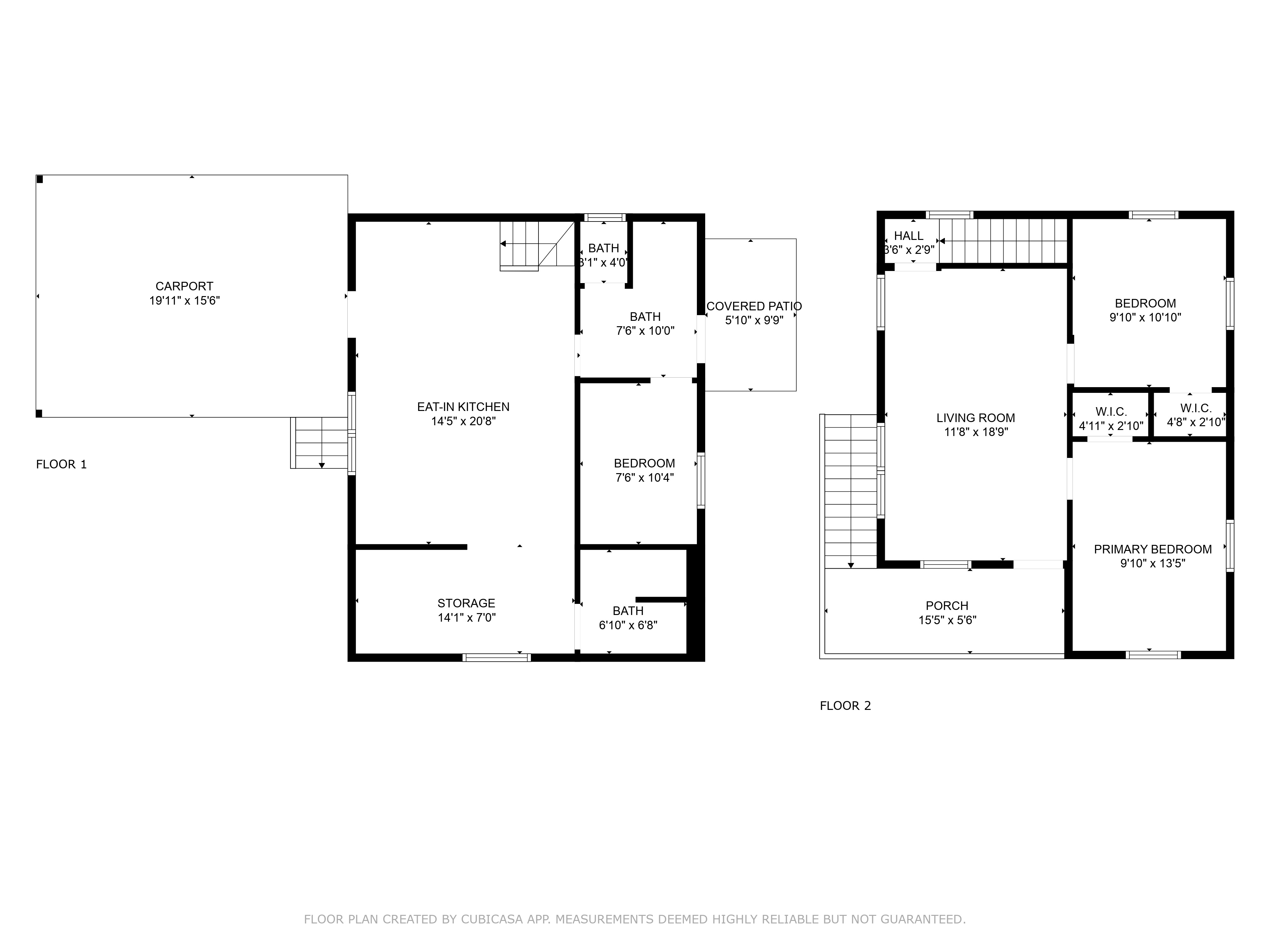
The second dwelling, a yellow multi-level home built in 1985, offers two bedrooms and one full bathroom on the upper level, with an additional bedroom and 3/4 bathroom on the lower level.
This versatile property presents multiple possibilities for investors or owner-occupants alike -- generate rental income from both homes, live in one while renting the other, or accommodate multi-generational living.
Conveniently located just minutes from shopping, dining, and outdoor recreation, including the nearby Hilo Shopping Center and Wailoa State Park.
**Information herein is based on county records and may not reflect actual property details. Buyers and buyer's agents are advised to independently verify all material facts deemed important to their purchase.**
Bringing together a team with the passion, dedication, and resources to help our clients reach their buying and selling goals. With you every step of the way.
Contact Us